Villen, Wohnungen, Grundstücke
Kaufen

Zur Objektliste
1180 Wien
SONNENDURCHFLUTETE DACHGESCHOSS-MAISONETTE MIT TERRASSE!
AUMANNPLATZ
Wfl. 148,32 m2 | KP € 995 000,-
Objektnummer 615

Beschreibung

Am Übergang vom Cottage Viertel zur Währinger Straße liegt dieses Jahrhundertwendehaus mit Lift in zentraler Lage angebunden an die gesamte Infrastruktur des beliebten Einkaufsviertels Währinger Straße /Kutschkermarkt. Die gegenständliche Dachgeschoss-Maisonette wurde 2005-2008 errichtet und befindet sich in sehr gutem Zustand. Sowohl die gut ausgestattete Küche als auch die Garderobenkästen sind im Angebot enthalten.

RAUMAUFTEILUNG

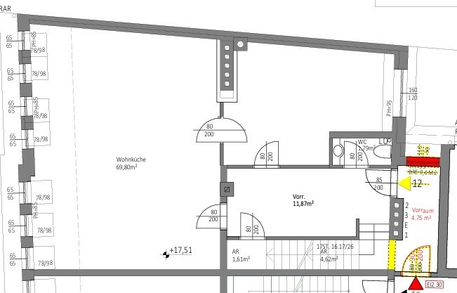
DG 1:

* großes Entrée, Garderobe, Einbauschränke mit Spiegelfronten
* sonnendurchfluteter, großer Wohnraum
* große extra Küche mit viel Stauraum und großem Kühlschrank
* Aufgang ins 2. DG
* Gäste-WC
* Abstellraum

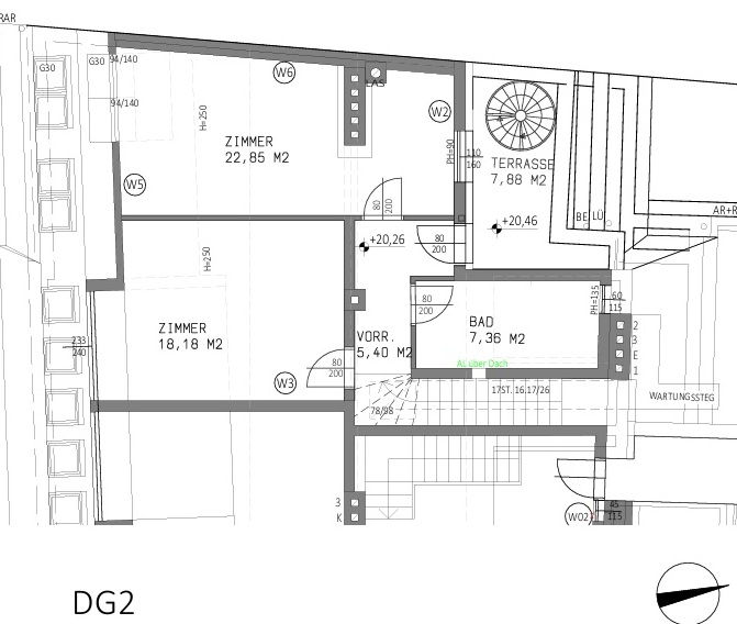
DG 2:

* 2 große Schlafräume, einer mit Garderobenraum
* Terrasse (7,88 m²) mit Aufgang auf das begehbare Flachdach mit fantastischem Blick über Wien
* großes Bad mit Badewanne, Dusche, Bidet, WC und Waschtisch sowie einem Fenster

WEITERE INFORMATIONEN

Zur Wohnung ist ein sehr großer Keller (ehemalige Waschküche) mit Fenstern und exklusivem Ausgang in einen kleinen Lichthof zur alleinigen Nutzung zugeordnet. Bei Bedarf kann ein Garagenplatz vis á vis des Jahrhundertwendehauses angemietet werden (€ 120.-).

 

Objekt-Überblick

Objektdaten

Kaufpreis 995 000,- €
Wohnfläche 148,32 m2
Anzahl Zimmer 3
Terrasse/Balkon 8 m2
Geschoß DG
Keller 15 m2
HWB 121,6 kWh/m2a
fGEE 2,07
Betriebskosten 301,17 €
Reparaturrücklagen 152,63 €
Mehrwertsteuer 30,12 €

Ausstattung

  • Einbauschränke
  • komplette Küche mit amerikanischem Kühlschrank
  • Parkettböden
  • Balkon
  • begehbares Flachdach mit Wienblick
  • großer Kellerraum

Pläne

Grundrisse

Information - Kontakt

Kaufnebenkosten

Maklerprovision
3% des Kaufpreises + 20% MwSt.
Grunderwerbssteuer
3,5% des Kaufpreises
Grundbucheintragung
1,1% des Kaufpreises
Vertragserrichtung-/durchführung
nach tariflicher Vereinbarung
Kontakt E-Mail
Betreff: Objektnummer 615
Kontakt Telefon

Ich freue mich auf Ihren Anruf!

Portraitfoto von Maja Eggenberger

Selected Homes Mag. Maja Eggenberger Frimmelgasse 4 1190 Wien

+43 676 78 00 219